El Ministerio de Educación, Cultura y Deporte, mediante un anuncio que publica el Boletín Oficial del Estado (BOE) del martes 27 de enero de 2015 ha anunciado el procedimiento abierto para redactar el proyecto de consolidación del Monasterio de San Pedro de Arlanza. En concreto, se ha publicado la “Redacción del proyecto básico y de ejecución, estudio de seguridad y salud, coordinación de seguridad y salud y dirección de las obras de consolidación y restauración, mejora de la estabilidad y la estanqueidad del Monasterio de San Pedro de Arlanza en Hortigüela (Burgos)”. Con un presupuesto de 218.864,80 euros, las ofertas podrán ser presentadas hasta el próximo día 9 de marzo, han informado a Europa Press fuentes de la Subdelegación del Gobierno.
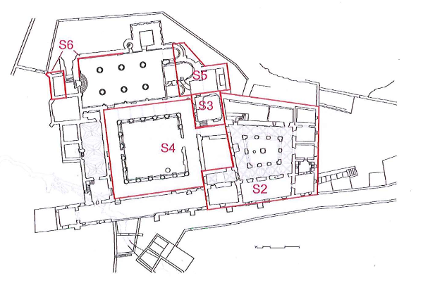
Según el Pliego de Condiciones Técnicas, el proyecto tienen que contemplar actuaciones en los siguientes elementos:
- Claustro Menor (S2): reforzamiento de los muros, eliminación de cobertura vegetal, desmontaje de forjados y nuevas cubiertas.
- Torre de la Sala Capitular (S3): restauración integral, incluida la cubierta.
- Claustro mayor y crujía transversal (S4): consolidación de paramentos y coronaciones
- Cabecera de la iglesia y sacristía (S5): consolidación, reparación de grietas y medidas para mejorar la estanqueidad.
- Resto de Coro Alto y muros norte y oeste (S6): consolidación.

Enlace BOE: http://www.boe.es/boe/dias/2015/01/27/pdfs/BOE-B-2015-2279.pdf
Pliego de condiciones:
El Gobierno consolidará el Monasterio de San Pedro de Arlanza
El Ministerio de Educación, Cultura y Deporte, mediante un anuncio que publica el Boletín Oficial del Estado (BOE) de este martes ha dado a conocer el procedimiento abierto para redactar el proyecto de consolidación del Monasterio de San Pedro de Arlanza. En concreto, se ha publicado la redacción del proyecto básico y de ejecución, estudio de seguridad y salud, coordinación de seguridad y salud y dirección de las obras de consolidación y restauración, mejora de la estabilidad y l …
(c) 2015 Europa Press. Está expresamente prohibida la redistribución y la redifusión de este contenido sin su previo y expreso consentimiento.
El Gobierno consolidará el Monasterio de San Pedro de Arlanza
El Ministerio de Educación, Cultura y Deporte, mediante un anuncio que publica el Boletín Oficial del Estado (BOE) de este martes ha dado a conocer el procedimiento abierto para redactar el proyecto de consolidación del Monasterio de San Pedro de Arlanza. En concreto, se ha publicado la redacción del proyecto básico y de ejecución, estudio de seguridad y salud, coordinación de seguridad y salud y dirección de las obras de consolidación y restauración, mejora de la estabilidad y …
Leer mas: https://www.europapress.es/castilla-y-leon/noticia-gobierno-consolidara-monasterio-san-pedro-arlanza-20150127142427.html
(c) 2015 Europa Press. Está expresamente prohibida la redistribución y la redifusión de este contenido sin su previo y expreso consentimiento.
El Gobierno consolidará el Monasterio de San Pedro de Arlanza
El Ministerio de Educación, Cultura y Deporte, mediante un anuncio que publica el Boletín Oficial del Estado (BOE) de este martes ha dado a conocer el procedimiento abierto para redactar el proyecto de consolidación del Monasterio de San Pedro de Arlanza. En concreto, se ha publicado la redacción del proyecto básico y de ejecución, estudio de seguridad y salud, coordinación de seguridad y salud y dirección de las obras de consolidación y restauración, mejora de la estabilidad y l …
(c) 2015 Europa Press. Está expresamente prohibida la redistribución y la redifusión de este contenido sin su previo y expreso consentimiento.